首 页
保 健
商 城
English
专业口腔医学网
新闻
会展培训
本站新闻
大众新闻
专业新闻
基础
口腔材料
药物药理
组织病理
解剖生理
临床
正畸
隐形矫治
功能矫治
活动矫治
固定矫治
正畸病例
正畸基础
口外
整形种植
关节神经
肿瘤涎腺
感染损伤
牙槽外科
口腔麻醉
修复
修复技工
修复基础
精密附件
全口义齿
活动修复
固定修复
儿童
儿童口外
儿童正畸
儿童修复
儿童口内
口内
美白预防
口腔粘膜
牙周牙龈
牙体牙髓
护理
消毒供应
其它护理
病房护理
门诊护理
考试
成人高考
职称考试
执业考试
临床实习
考研资讯
口腔教育
器材
口腔设备
口腔图书
口腔材料
口腔器械
经管
加工中心
医院管理
诊所管理
管理文摘
供求
供应
求购
招商
加盟
会展
二手
产品库
口腔黄页
人才
简历
职位
人力资源
求职宝典
口腔职场
政策法规
猎聘服务
企业招聘
人才资讯
互动
博客
交友
论坛
问吧
新鲜事
前沿PK
前沿调查
即时贴
情感贴
节日贴
资源
口腔专家
医院诊所
加工中心
口腔药典
口腔词典
试题中心
学校同学
网址导航
软件下载
图片
基础图片
临床图片
保健图片
其它图片
搜索:
图片中心 Photo
图片首页
基础图片
临床图片
保健图片
其它图片
当前位置:
口腔前沿网
>>
口腔图片
>>
其它图片
>>
牙科装修
>> 浏览图片
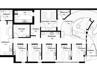
伦敦口腔诊所平面装修图片
2013-9-17 18:09:00 佚名 本站原创
共
2
张,当前第
1
张
上一张
|
下一张
幻灯播放
1
/
2
伦敦Riverpark5椅位口腔诊所平面装修图片
Tags:
下一图集:
美国丹佛大卫牙科诊所装修平面图
上一图集:
日本绿色牙科诊所装修图片
相关图集推荐
网友评论
以下是对
[
伦敦口腔诊所平面装修图片
]
的评论,总共:
0
条评论
关于我们
|
广告业务
|
联系我们
|
版权说明
|
网站地图
| |
银瀚科技版权所有
友情链接:
口腔医学网
|
牙周炎
|
口腔挂图
|
牙齿矫正
|